3505 Brunell DR
OAKLAND, CA 94602
$599,000
TypeSFH
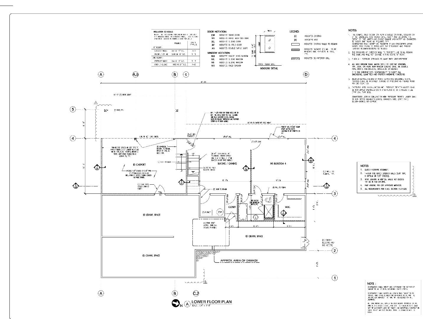
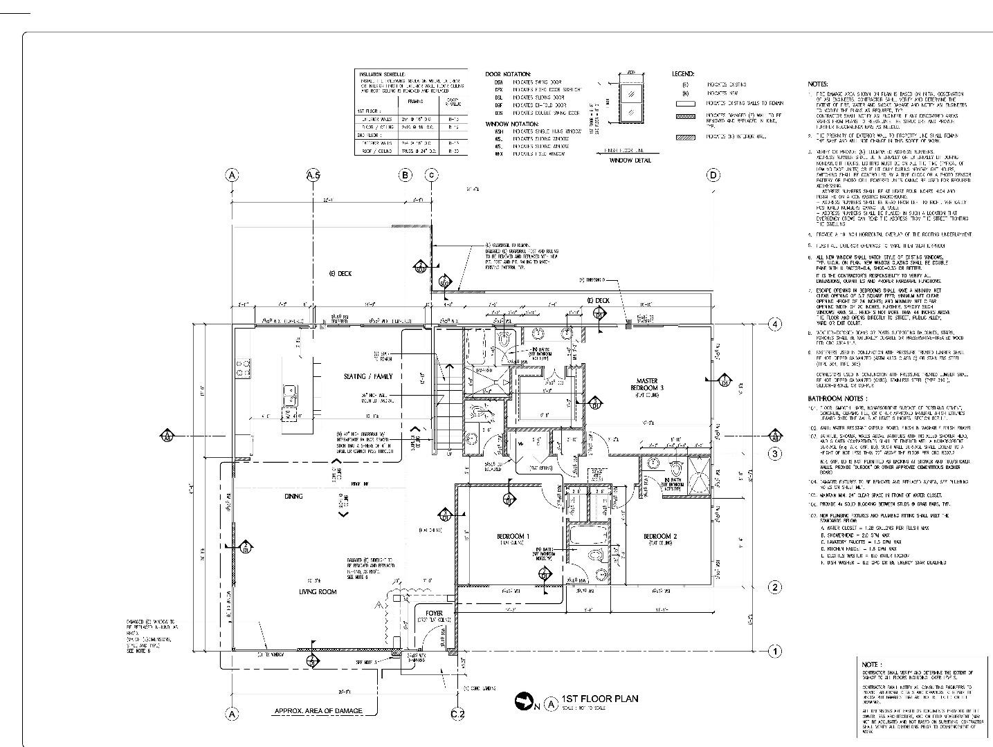
Area 2,700
Garage 0
Beds 4
Baths 4 1/2
Pool No
Public Remarks
Single family home ready to be built with approved plans in prime location of Woodminster neighborhood with astonishing views of the bay!
|
Age: |
56 |
|
List Price: |
$599,000 |
|
Baths: |
4 1/2 |
|
Beds: |
4 |
|
Lot Size SqFt: |
14,725.00 |
|
Structure SqFt: |
2,700 |
|
MLS Number: |
81677026 |
|
Property Class: |
Residential |
|
Property Type: |
Single Family Home |
|
Status: |
Canceled |
|
Family Room: |
Separate Family Room |
|
Formal Dining: |
Dining Area |
|
Heating: |
No Heating |
|
Waste System: |
Sewer - Public |
|
Building Type: |
Detached |
|
Stories: |
1 |
|
Roof: |
Shingle |
|
Foundation: |
Concrete Perimeter |
|
Water: |
Public |
|
View: |
Neighborhood |